4 Bedroom Townhouse – Lot 405 – Mambourin Green
- $599,950
4 Bedroom Townhouse – Lot 405 – Mambourin Green
- $599,950
Project Highlights
✓
New Squares $2000 Cashback
✓
3 and 4 bedroom townhouses with practical, family-friendly layouts.
✓
2 bathrooms and 2 car garages across all designs, enhancing everyday convenience.
✓
Well-presented, contemporary homes ideal for owner-occupiers and investors seeking quality and location.
✓
Westgarth townhome designs including multiple layout types (Type D, E, F, G, H).
✓
Modern architectural styling with clean lines and contemporary street appeal.
✓
Well-planned internal layouts maximising living space, natural light, and functionality.
✓
Modern neighbourhood setting designed to support long-term growth and liveability.
✓
Located within Mambourin Green, a large masterplanned community by Frasers Property.
✓
Strong lifestyle appeal with parks, playgrounds, and open green spaces integrated throughout the estate.
✓
Close proximity to proposed schools, sports reserves, and community facilities within the estate.
✓
Future-focused community vision promoting connection, outdoor living, and family lifestyle.
✓
Turn-key townhouse homes by Hattan, designed for low-maintenance modern living.
✓
Quality-focused construction by SOHO Living Australia Pty Ltd trading as Hattan, a recognised townhouse builder.
Project Information
Project ID: PRJ77
Project Type: Townhouse
Bedrooms: 3 – 4
Local City Council: Wyndham City Council
Suburb: Mambourin, VIC, 3024
Country: Australia
Estimated Completion Date: Q3 2026
Developer: Frasers Property Australia
Listing Type: Residential
Price: Starts from $599,000
Growth Region: Western Growth Corridor
Street Address: Black Forest Road / Greens Road
City: Melbourne
Project Status: Under Construction
Number of Townhouses: 10
Builder: SOHO Living Australia Pty Ltd (trading as Hattan)
Project Page of Mambourin Green
About Mambourin Green
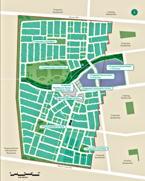
Mambourin Green – Stage Four Release (Hattan Townhomes, Lots 401–410) is a contemporary townhouse offering located within the established Mambourin Green masterplanned community. This release presents a limited collection of modern 3 and 4 bedroom turn-key townhouses, thoughtfully designed for comfort, functionality and everyday living. Delivered by Hattan within a Frasers Property community, the project focuses on quality design, lifestyle appeal and long-term liveability.
Fittings & Fixtures
- Modern turn-key townhouse homes designed to be move-in ready.
- Contemporary kitchens with open-plan layouts integrated with living and dining areas.
- 2 bathrooms including ensuite to master bedroom in all designs.
- Built-in wardrobes to bedrooms as shown in floorplans.
- Internal laundry spaces designed for practical everyday use.
- Private garages accommodating 2 cars per townhouse.
- Well-considered internal layouts designed to maximise space, light and usability.
Welcome to the Neighbourhood
Mambourin Green is a growing residential community designed around lifestyle, connection and convenience. The neighbourhood is planned to include schools, childcare centres, sports reserves, parks and a future town centre. Residents benefit from access to green open spaces, walking trails and community facilities, creating a family-friendly and active environment. The location provides convenient connectivity to surrounding suburbs and key transport routes, supporting access to employment hubs and greater Melbourne.
Why purchase in Mambourin, VIC, 3024
Mambourin is an emerging suburb within Melbourne’s western growth corridor, attracting strong interest from homeowners and investors alike. The area is characterised by new infrastructure, expanding residential communities and future-focused planning. Purchasing in Mambourin offers the opportunity to secure a modern home in a developing suburb with planned amenities, transport improvements and long-term growth potential, all within a masterplanned environment.
